OLAZABAL HAUNDI

Altzo (Gipuzkoa)

La topografía acentuada, la desembocadura del arroyo Irisoro en el río Oria y la edificación diseminada de tipo tradicional configuran el núcleo más antiguo de Altzo.
El proyecto aprovecha el asoleo, condicionado por la presencia del bosque, favorece la relación tanto con la zona histórica, con la presencia de la Iglesia de San Salvador de Olazabal y la casa cural, como con el paisaje natural y organiza los espacios exteriores a través de la variación de la cota del terreno.
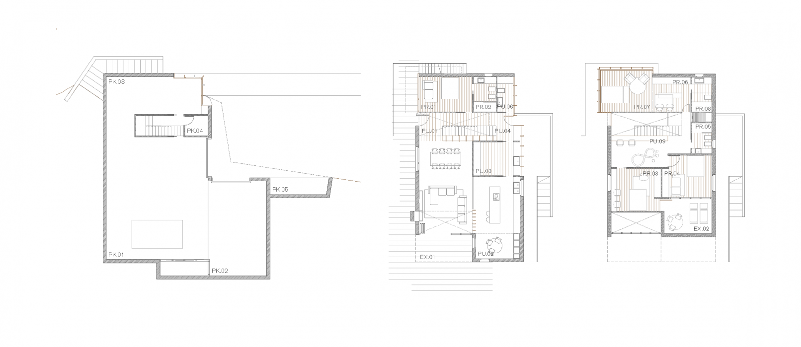
La presencia de vacíos sobre el volumen compacto de la vivienda enriquece la relación entre las piezas y maximiza la continuidad con el espacio exterior. En el interior, el espacio vertebrador de comunicación entre las distintas plantas y la luz natural procedente del lucernario estructuran la distribución en planta baja y filtran la zona de hijos con respecto a la de padres en planta primera.
Promotor: Privado
Superficie: 300 m²
Localización: Altzo (Gipuzkoa)
Fecha: 2015
Proyectistas: Pérez + Usabiaga Arquitectura & Zehark Studio
Equipo: Ingeniero
Constructora:
Estado: Proyecto de ejecución