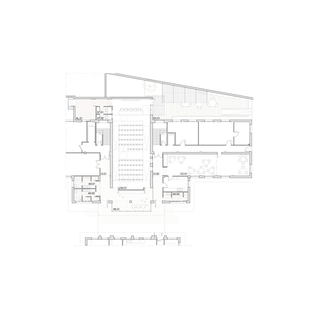
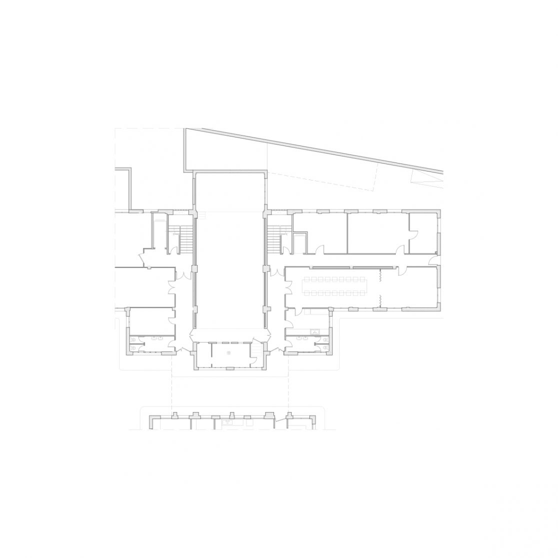
SALÓN DE ACTOS HSJD

Zaragoza

Una parcela urbanística mixta y un edificio en el que conviven diversos usos, desde hospitalarios hasta residenciales, condicionan una propuesta que aspira a satisfacer las exigencias de versatilidad que requiere la dualidad de programas.
El nuevo planteamiento del salón de actos lo convierte en elemento integrador y filtro polivalente de un proyecto que reconfigura la dotación tanto a nivel funcional, con la incorporación de un nuevo espacio exterior y un hall de acceso, como técnico.
Promotor: Hospital San Juan de Dios (HSJD)
Superficie: 441,14 m²
Localización: Zaragoza
Fecha: 2013
Proyectistas: Pérez + Usabiaga Arquitectura
Equipo:
Constructora:
Estado: Proyecto básico