VIVIENDA RG

Valareña (Zaragoza)

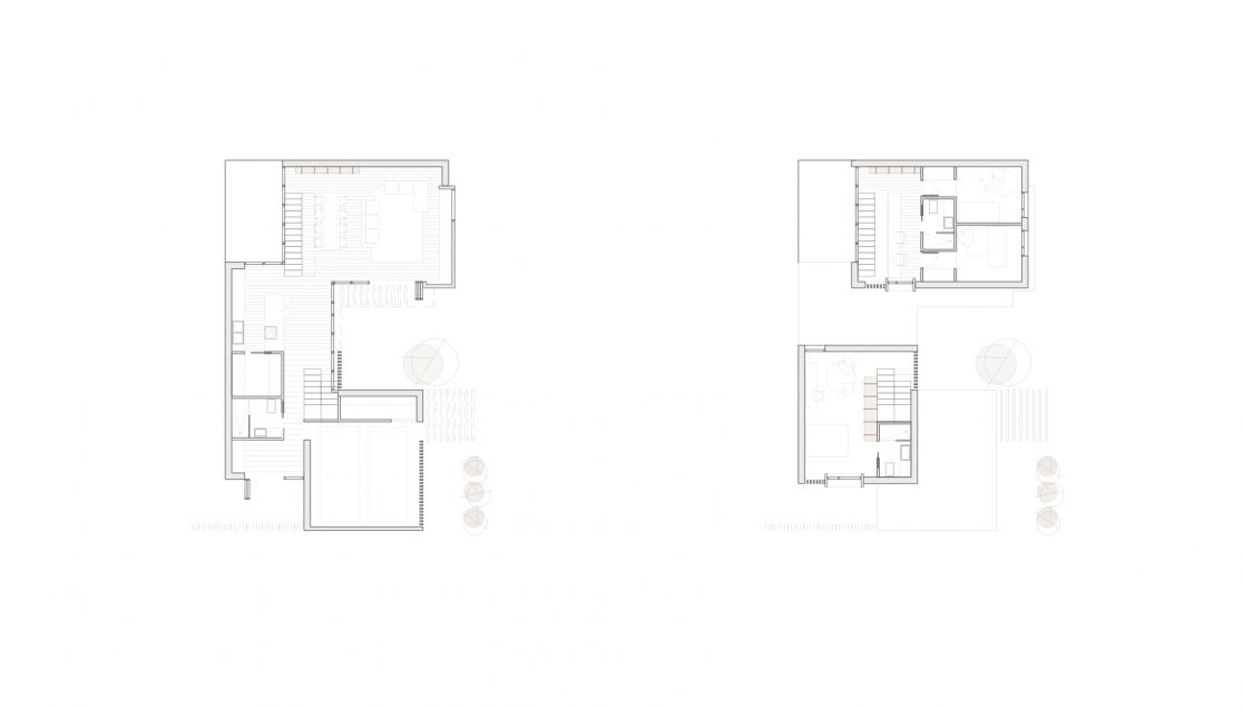
La estructura ortogonal y de parcelas seriadas del municipio de Valareña surge dentro de las políticas nacionales de colonización del territorio de los años 60.
La actuación densifica una de estas parcelas mediante la implantación de una vivienda en la que se integra una parte de programa de apartamento rural.
La configuración de un volumen fragmentado y la presencia de tres patios permiten articular los diferentes grados de privacidad de los espacios, la mejora del asoleo y ventilación del conjunto y la relación con un espacio exterior semiprivado en torno al cual se organiza la actividad principal de planta baja.
Promotor: Privado
Superficie: 186 m²
Localización: Valareña (Zaragoza)
Fecha: 2015
Proyectistas: Pérez + Usabiaga Arquitectura
Equipo: Ingeniero
Constructora:
Estado: Anteproyecto